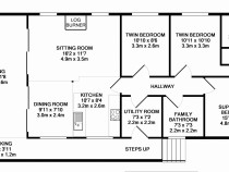
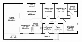
The Moorings, exclusively designed to provide the ultimate seaside retreat is the latest addition to the luxury lodges available at Mossyard. Set on the headland, The Moorings has a wonderfully spacious open plan kitchen/dining/living area with doors that open on to an enclosed deck with uninterrupted views across Fleet Bay to the front, with evening sunsets and views to Ben John & the Galloway Hills from the rear of the lodge.
Accessiblity
The Moorings is not graded formally for disabled use. We do however take great care in making sure that we offer comfortable accommodation for elderly guests, ambulant disabled and guests with frail mobility. You can drive right up to the door at the lodge. There is a parking area outside the property. There are three steps to get up to the lodge and a low threshold entrance doorway. Once you are inside the lodge the accommodation is all on one level.
Dog Friendly Accommodation
Food Shopping & Provisions
Asda & Tesco will deliver to Mossyard.
Weekly Cost
| Low season | Mid season | High season | Peak season |
|---|---|---|---|
| £972 | £1150 | £1337 | £1539 |
Prices are per property per week excluding Discover Scotland Booking Fee & Damage Deposit.
- Discover Scotland Booking Fee: £30.00 per booking
- Damage Deposit £150.00 (Refundable) or £20.00 Non Refundable Waiver Fee